
MORE PHOTOS
Property type Office
Room(s) 7
Concierge Yes
Building roc fleuri
Reference MP-2954
CONTACT US
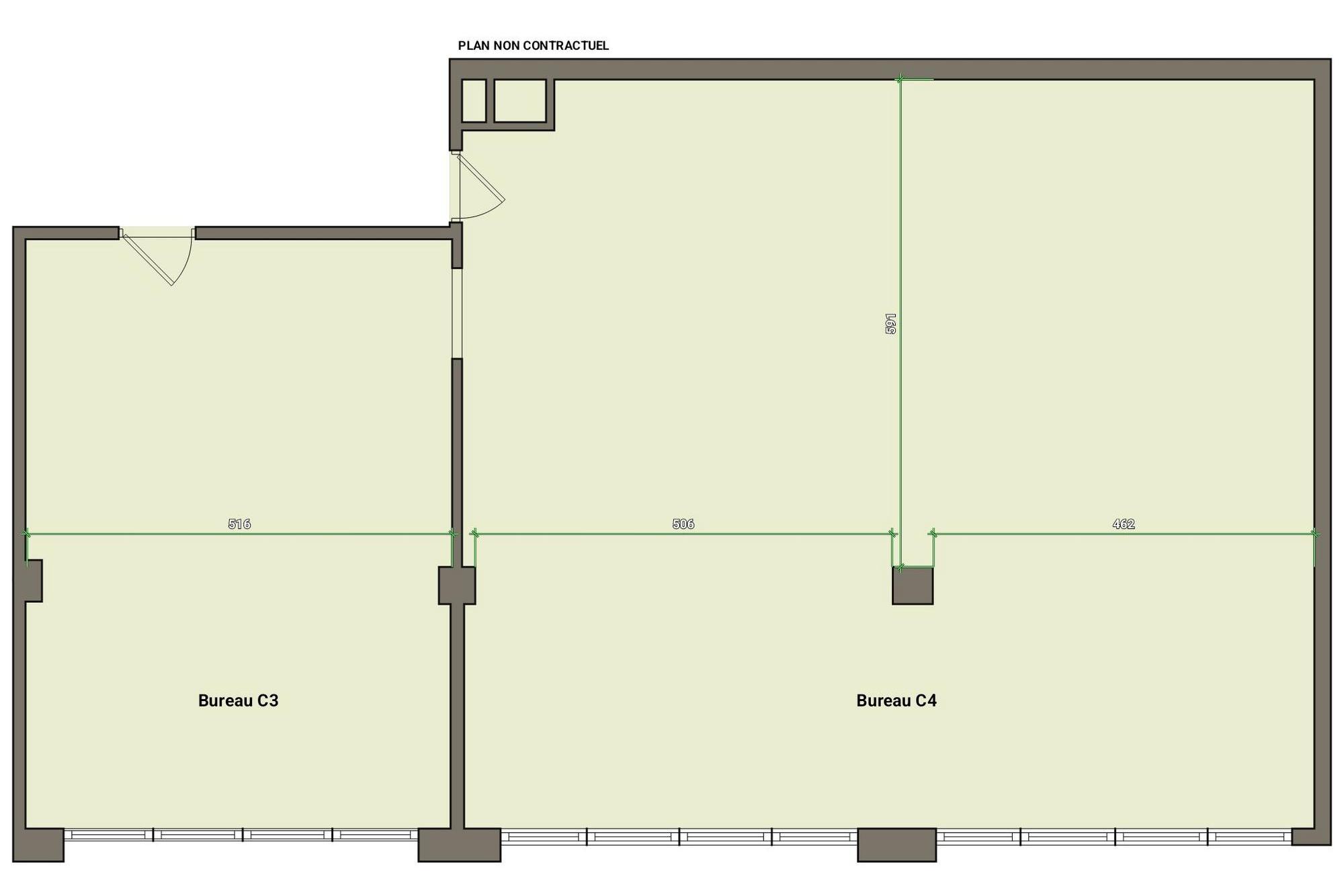
Close to all amenities, this 134 s.qm. office is located in a high-standing building in the La Rousse district.

Located in the La Rousse district, close to the center and to all amenities, shops, bus lines and Larvotto beaches, in a good quality building with 24/7 concierge service, we offer for rent this large air-conditioned office comprising :
five offices rooms, one open space, one meeting room with small kitchen.
Parking spaces available in addition.
Rent subject to VAT.

CONTACT US
Just five minutes from the beating heart of Monaco and close to the Larvotto beaches with direct elevator access, La Rousse - Saint Roman district is both peaceful and dynamic.
Download PDF
PLANS





