
+ БОЛЬШЕ ФОТОГРАФИЙ
Тип недвижимости Квартира
Штука(и) 1
Ванная(ые) комната(ы) с туалетом 1
Погреб(ы) 1
Пол 2
Парковка(и) 1
Подъемник Да
Здание giotto
Ссылка MP-2733
КОНТАКТ США
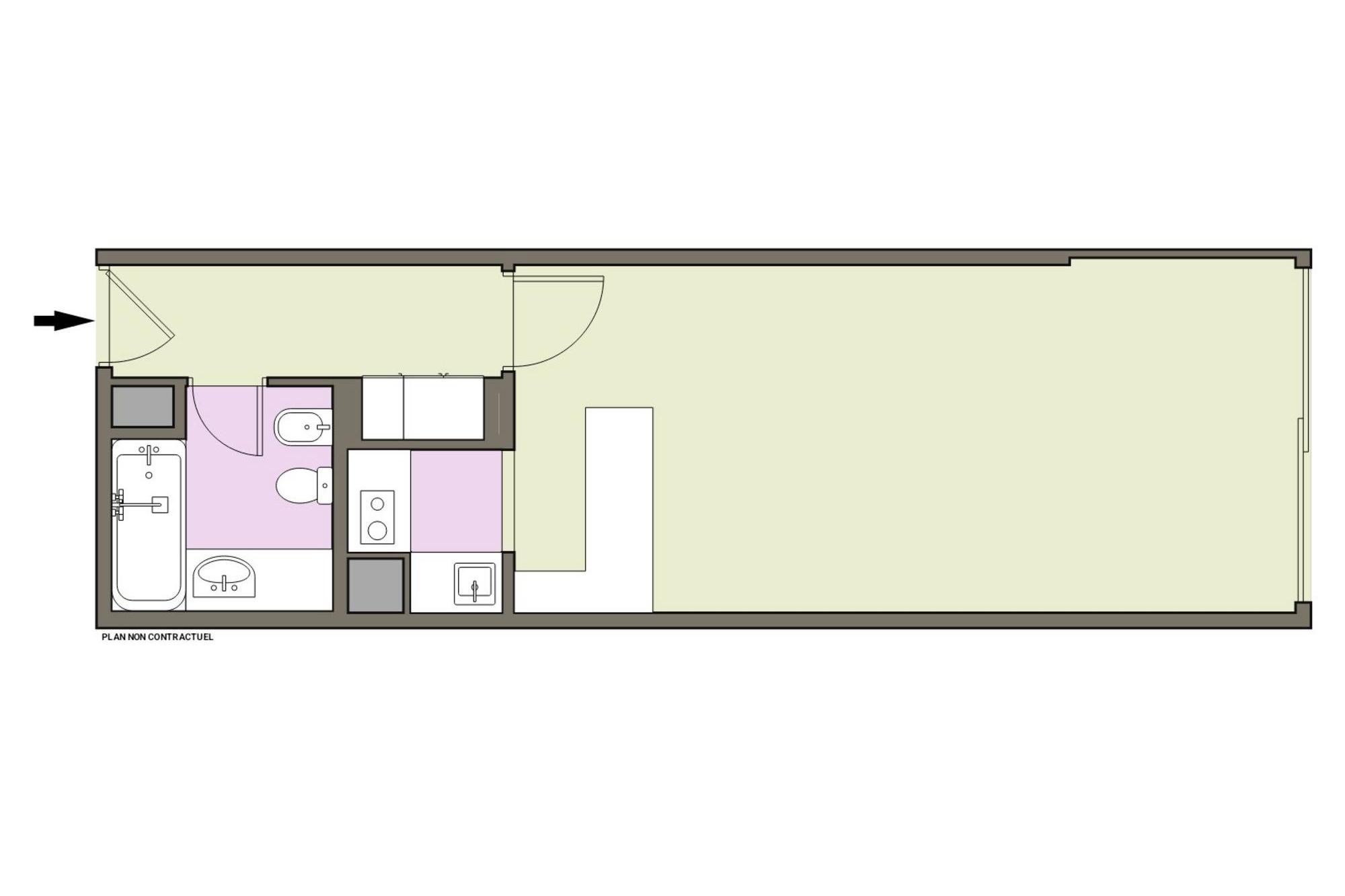
Просторная студия на 43 м2, с восхитительным видом на порт Фонвьей. Большой погреб и парковочное место включены в стоимость.

Одно из зданий в жилом комплексе на побережье Фонвьей, рядом с магазинами, садами и транспортной инфраструктурой.
Просторная студия на 43 м2, с восхитительным видом на порт Фонвьей.
Большой погреб и парковочное место включены в стоимость.
Прихожая, ванная комната, большая жилая комната с американской кухней.

КОНТАКТ США
Воплощение современности, квартал Фонвье (Fontvielle) неразрывно связан с экономическим развитием Монако, предлагает укрытую от ветров гавань с прогулочными яхтами, спортивный комплекс и вертолётную площадку напротив моря.
Коммерческий директор
Владеет языкамифранцузский и английский
РАСПЕЧАТАЙТЕ ЭТОТ ЛИСТ
ПЛАНЫ






