
Property type Apartment
Room(s) 1
Bathroom(s) with toilet 1
Floor 2
Modern building Yes
Elevator Yes
Concierge Yes
Guardian Yes
Building 45G
Reference MP-2897
CONTACT US
We are offering for sale large studios located in a prestigious building in the heart of the historic Condamine district. Close to numerous shops and restaurants, these properties enjoy a central location just steps from Port Hercule.

Located in one of Monaco’s newest and most elegant buildings, right in the heart of the Condamine district, these studios range from 46m² to 62m² and embody refinement and modern comfort.
These studios are perfect as a pied-à-terre in the Principality or attractive for rental investment; they feature high-end finishes and a well-thought-out layout to optimise space.
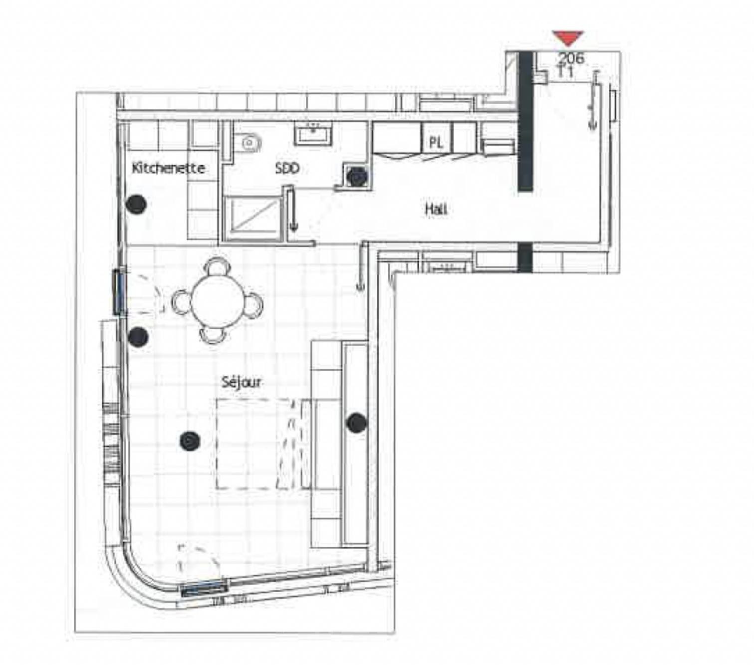
Each studio comprises an entrance hall, a main room with an open-plan kitchen, and a fully fitted bathroom.
The studios can also be combined to form two- or three-room apartments.
A secure parking space within the residence can be purchased at an additional cost, ensuring optimal everyday convenience.
The properties are let on an annual basis.
The 45 G residence in Monaco is a true modern architectural gem that combines contemporary style with sleek design elements. Each apartment offers exceptional features, including marble floors, high-end fittings and designer fixtures.

CONTACT US
Senior broker
LanguagesFrench, English, Italian, Swedish







