
Property type Apartment
Room(s) 1
Bathroom(s) with toilet 1
Floor 2
Modern building Yes
Concierge Yes
Building 45G
Reference MP-2897
CONTACT US
We are offering for sale a large studio located in a prestigious building in the heart of the historic Condamine district. Close to numerous shops and restaurants, this property enjoys a central location just steps from Port Hercule.

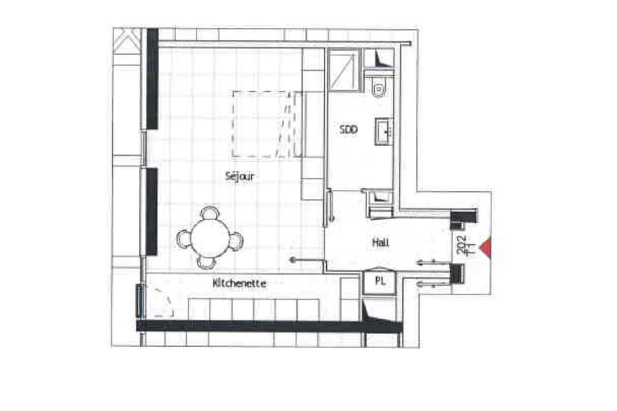
Located in one of the most recent and elegant buildings in Monaco, right in the heart of the Condamine district, this sumptuous 56.80 m² studio embodies refinement and modern comfort.
Perfect as a pied-à-terre in the Principality or a rental investment, it features high-end finishes and a carefully designed layout to optimize space.
It consists of an entrance hall, a main living area with an open kitchen and a fully equipped bathroom.
A parking space is also available within the residence, providing added convenience for its future residents.
This property is rented at €4700/month + charges until June 14, 2026.
The 45G residence in Monaco is a true modern architectural gem, combining contemporary style with clean design elements. Each apartment offers exceptional features, including marble floors, premium fittings, and designer installations.

CONTACT US
Broker
LanguagesFrench, English, Italian, Swedish




